The Reserve at Park Vista offers custom new construction on a private cul-de-sac in a highly convenient location! To-be-built 2-story townhomes feature stucco exterior, 9 ft ceilings on the main and upper levels, attached 2-car garage with automatic garage door opener, and low-maintenance xeriscaped front yard. Enjoy 4 bedrooms, 4 bathrooms, fully finished basement with rec room, and private backyard. You have the unique ability to select your favorite finishes and upgrades, ensuring every detail is tailored specifically to your taste!
Overview:
4358 Siferd Boulevard
The Reserve at Park Vista
Style: Stucco 2 Story Townhome with Finished Basement
Bedrooms: 4 / Bathrooms: 4 Square Feet: 2,453 Status: TO BE BUILT
MLS# 9597260
Highlights Include:
TO BE BUILT Stucco 2-Story Townhome
2,453 sqft, including finished basement
4 beds, 4 baths, 2 car garage with garage door opener
9 ft ceilings on main level
Basement rec room pre-plumbed for a wet bar
Living room features gas fireplace with tile surround
2×6 construction
95% efficient gas furnace
On a private cul-de-sac
Builder warranty included
Stainless steel appliance package includes gas range and refrigerator
Kitchen features stone counters, bar-top island, abundant can lighting, pantry. and 42″ extended height upper cabinetry
Luxury vinyl flooring throughout the main level
Owner’s suite offers a walk-in closet an en suite bathroom with a double vanity and custom tiled tub & shower
Stone counters, undermount sinks, and tile surrounds in the full bathrooms
Upstairs laundry with washer and dryer included
Central A/C and window blinds included
Xeriscape front yard and private, fully fenced backyard with auto sprinklers
Convenient to Academy, Powers, Austin Bluffs, UCCS, and Palmer Park, with a wide array of shopping, dining, and other nearby amenities
The Reserve at Park Vista is a new construction community in a popular central location! This gorgeous open concept two-story features nine foot ceiling heights on the main level. Kitchen features granite counters, pantry, and shaker style cabinets with extended height 42 inch upper cabinetry. Stainless steel appliance package includes a gas range and refrigerator. You’ll find granite counters, undermount sinks, and tile shower surrounds in the full bathrooms. You can customize the house with all your favorite finishes. Enjoy 4 bedrooms, 4 bathrooms and a 2 car garage plus fenced private yard. Walk-in closet and five-piece bathroom with double sinks attach to master bedroom. Jack-and-jill bath serves the other bedrooms. Laundry is conveniently located near the upper level bedrooms and is equipped with washer and dryer. Fully finished basement is a great secondary living space. There’s a bedroom with walk-in closet, full bathroom, and spacious rec room! Rec room is pre-plumbed for a wet bar. Fully landscaped with rear privacy fence. Window blinds and A/C are included. Convenient to Academy, Powers, Austin Bluffs, and UCCS with a wide array of shopping, dining and other nearby amenities. Situated on private cul-de-sac, nicely tucked away from the hustle and bustle. If you appreciate a quiet living environment, this will suit you perfectly.
Overview:
4350 Siferd Boulevard
Park Vista
Style: Stucco 2 Story with Finished Basement
Bedrooms: 4 / Bathrooms: 4 Square Feet: 2,453 Status: TO BE BUILT
MLS# 3954536
Highlights Include:
TO BE BUILT Stucco 2-Story
2,453 sqft, including finished basement
4 beds, 4 baths, 2 car garage
9 ft ceilings on main level
Basement rec room pre-plumbed for a wet bar
Living room features gas fireplace with tile surround
2×6 construction
95% efficient gas furnace
Six-panel doors
On a private cul-de-sac
Builder warranty included
Stainless steel appliance package includes gas range and refrigerator
Kitchen features granite counters, bar-top island, pendant lighting, pantry. and shaker style 42″ extended height upper cabinetry
Luxury vinyl flooring throughout the main level
Owner’s suite offers a walk-in closet an en suite 5-piece bathroom with a double vanity and a tiled tub & shower
Granite counters, undermount sinks, and tile surrounds in the full bathrooms
Upstairs laundry with washer and dryer included
Central A/C and window blinds included
Fully landscaped with rear privacy fence
Convenient to Academy, Powers, Austin Bluffs, UCCS, and Palmer Park, with a wide array of shopping, dining, and other nearby amenities
Today’s Terrace at Creekwalk homes are a modern design in a coveted location. This newly built two-story offers a showcase kitchen. Luxurious waterfall island features cascading quartz. Belmont Fusion frameless cabinets with contrasting side panels include push-to-open Legra drawers for a sleek, handleless look to impress your guests. Custom full tile backsplash accentuates the kitchen along with 36” gas range with hood, stainless steel appliances including built-in microwave, and pantry cabinet.
Highlights Include:
Two story paired home near the exciting new Creekwalk shopping center and internationally acclaimed The Broadmoor hotel
2,646 sqft, including finished basement
3 bedrooms
4 bathrooms
2 car garage
9 ft ceilings
Central A/C
Great room features a gas fireplace
2×6 construction
Basement wet bar
Finished garage
High efficiency furnace
Tankless water heater
Minutes to Cheyenne Mountain State Park and North Cheyenne Canyon Park
Contemporary exterior elevation
Kitchen features waterfall island with cascading quartz counter and a built-in microwave, Belmont Fusion frameless cabinets with contrasting side panels, push-to-open Legra drawers for a sleek handleless look, custom full tile backsplash, 36” gas range with hood, stainless steel appliances, and pantry cabinet.
Luxury Vinyl flooring throughout the main level
Beautiful interior finish options – select your favorite!
Double owner’s suites include walk-in closet, floating double vanity, and walk-in shower
Large private fenced yard
Builder Warranty is included
No HOA!
Quiet, convenient location near S Nevada Ave and Lake Ave, convenient to I-25 and Hwy 115
Close to Ft Carson and Cheyenne Mountain Space Force Station
Overview:
175 Terrace Drive
Creekwalk
Style: Contemporary 2 Story with Finished Basement
Bedrooms: 3 / Bathrooms: 4 Square Feet: 2,646 Status: For Sale – Under Construction!
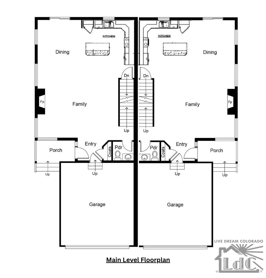
Excellent opportunity to invest in popular location with lots of rental demand near UCCS. There are two side-by-side units. Each unit has 4 bedrooms, 4 bathrooms, and a 2 car garage. Open, spacious layouts! Modern open concept kitchen, living, dining space. Private fenced back yards with auto sprinklers and xeriscaped front yards. Primary bedrooms have full attached bathrooms with double vanities. Low maintenance stucco two-story duplex with 2,594 sqft total per unit. Kitchen features granite counters, island, pantry, and shaker style cabinets with extended height 42 inch upper cabinetry. Living room offers gas fireplace with tile surround and generous can light placement. Dining space walks out to the back yard with privacy fence. Luxury vinyl tile flooring in entry, kitchen, dining, living room, bathrooms, and laundry. Full finished basement has a bedroom, full bathroom, and a red room pre-plumbed for a wet bar. A/C is included. Convenient to Academy, Powers, Austin Bluffs, and UCCS. Private cul-de-sac, quiet location. NO HOA!
Overview:
4266 and 4276 Orchid Street
Park Vista
Style: Stucco 2 Story with Finished Basement Duplex
Bedrooms: 8 / Bathrooms: 8 Square Feet: 2,594 per unit Status: TO BE BUILT – Construction is to complete by end of 2025
MLS# 9428821
Highlights Include:
2-Story duplex to be built 2025
2,594 sqft per unit, including finished basement
4 beds, 4 baths, 2 car garage per unit
9 ft ceilings on main and upper levels
Basement rec room pre-plumbed for a wet bar
Living room features gas fireplace with tile surround
2×6 construction
95% efficient gas furnace
Six-panel doors
On a private cul-de-sac
Builder warranty included
NO HOA!
Stainless steel appliance package includes gas range and refrigerator
Kitchen features granite counters, bar-top island, pendant lighting, pantry. and shaker style 42″ extended height upper cabinetry
Luxury vinyl flooring throughout the main level
Owner’s suites offer both a walk-in closet plus a second closet, and an attached bathroom with a double vanity and a tiled tub & shower
Granite counters, undermount sinks, and tile surrounds in the full bathrooms
Upstairs laundry
Central A/C
Xeriscape front yard and private, fully fenced backyard with auto sprinklers
Convenient to Academy, Powers, Austin Bluffs, UCCS, and Palmer Park, with a wide array of shopping, dining, and other nearby amenities
New construction located in Southwest Colorado Springs’ new Creekwalk neighborhood. Near internationally acclaimed destination The Broadmoor, Today’s Terrace at Creekwalk offers a contemporary home design in a coveted location.
This stucco two-story has 9 foot ceilings on both main and upper levels and features beautiful and long-lasting luxury vinyl floor and generous can lighting placement, with a gas fireplace in the living room and sliding door to the back yard from the dining room. Kitchen features luxurious island, quartz counters, shaker style cabinets, and custom full tile backsplash along with stainless steel appliances, extended height 42 inch upper cabinetry, and pantry.
Owner’s suite offers both a walk-in closet plus a second closet, and an attached bathroom with double sinks and a walk-in shower. Quartz counters, undermount sinks, and 12×24 tile floors feature in the bathrooms. Laundry is upstairs with the bedrooms. Fully finished basement is a great secondary living space. There’s a bedroom with walk-in closet, full bathroom, and spacious rec room with wet bar!
Today’s Terrace at Creekwalk is convenient to I-25, Hwy 115, and a wide array of the newest shopping, dining and more exciting nearby amenities. Builder warranty is included. This is an HOA-free community!
Highlights Include:
Two story paired homes near the exciting new Creekwalk shopping center and internationally acclaimed The Broadmoor hotel
9 ft ceilings
2 car garage
2,599sqft, including finished basement
Central A/C
Great room features a gas fireplace
2×6 construction
Basement wet bar
Finished garage
High efficiency furnace
Tankless water heater
Minutes to Cheyenne Mountain State Park and North Cheyenne Canyon Park
Contemporary exterior elevation
Kitchen features stainless steel appliances, granite or quartz counters, oversized island, 42″ upper cabinetry, and pantry
Luxury Vinyl flooring throughout the main level
Beautiful interior finish options – select your favorite!
Owner’s suite includes two closets, double vanity, quartz counter, and walk-in shower
3 layout modifications available to fit your needs, including a double master bedroom option and an upper level loft option
Builder Warranty is included
No HOA!
Quiet, convenient location near S Nevada Ave and Lake Ave, convenient to I-25 and Hwy 115
Close to Ft Carson and Cheyenne Mountain Space Force Station
Overview:
145 and 155 Terrace Drive
Creekwalk
Style: Contemporary 2 Story Duplex with Finished Basement
Bedrooms: 6 / Bathrooms: 8 Square Feet: 5,188 / Rent: $6,000 Status: Rented, For Sale
New construction located in Southwest Colorado Springs’ new Creekwalk neighborhood. Near internationally acclaimed destination The Broadmoor, Today’s Terrace at Creekwalk offers a contemporary home design in a coveted location.
This stucco two-story has 9 foot ceilings on both main and upper levels and features beautiful and long-lasting luxury vinyl floor and generous can lighting placement, with a gas fireplace in the living room and sliding door to the back yard from the dining room. Kitchen features luxurious island, quartz counters, shaker style cabinets, and custom full tile backsplash along with stainless steel appliances, extended height 42 inch upper cabinetry, and pantry.
Owner’s suite offers both a walk-in closet plus a second closet, and an attached bathroom with double sinks and a walk-in shower. Quartz counters, undermount sinks, and 12×24 tile floors feature in the bathrooms. Laundry is upstairs with the bedrooms. Fully finished basement is a great secondary living space. There’s a bedroom with walk-in closet, full bathroom, and spacious rec room with wet bar!
Today’s Terrace at Creekwalk is convenient to I-25, Hwy 115, and a wide array of the newest shopping, dining and more exciting nearby amenities. Builder warranty is included. This is an HOA-free community!
Highlights Include:
Two story paired homes near the exciting new Creekwalk shopping center and internationally acclaimed The Broadmoor hotel
9 ft ceilings
2 car garage
2,599sqft, including finished basement
Central A/C
Great room features a gas fireplace
2×6 construction
Basement wet bar
Finished garage
High efficiency furnace
Tankless water heater
Minutes to Cheyenne Mountain State Park and North Cheyenne Canyon Park
Contemporary exterior elevation
Kitchen features stainless steel appliances, granite or quartz counters, oversized island, 42″ upper cabinetry, and pantry
Luxury Vinyl flooring throughout the main level
Beautiful interior finish options – select your favorite!
Owner’s suite includes two closets, double vanity, quartz counter, and walk-in shower
Builder Warranty is included
No HOA!
Quiet, convenient location near S Nevada Ave and Lake Ave, convenient to I-25 and Hwy 115
Close to Ft Carson and Cheyenne Mountain Space Force Station
Overview:
165 Terrace Drive
Creekwalk
Style: Contemporary 2 Story with Finished Basement
Bedrooms: 3 / Bathrooms: 4 Square Feet: 2,599 Status: For Sale
If you are looking for a new Colorado Springs home that is luxurious with a modern design, Today’s Terrace may be just what you’re looking for!
Nestled in the vibrant community of Southwest Colorado Springs, Today’s Terrace at Creekwalk is located in proximity to the iconic, internationally acclaimed Broadmoor destination resort.
What will your Colorado Springs home look like?
These new construction homes are priced at $790,000 and offer a unique blend of comfort and elegance tailored for discerning buyers.
Each Colorado Springs home at Today’s Terrace in this exclusive neighborhood is designed with flexibility in mind.
Buyers can opt for three bedrooms, double owner’s suites, or a combination of two bedrooms and a loft with four bathrooms and a finished two-car attached garage.
Whether you have a growing family, want extra space as a couple or an individual seeking a home office, this adaptability ensures that each residence can cater to a variety of lifestyle needs. With nine-foot ceilings on both the main and upper levels, the home feels open and inviting.
The main level of these homes is a testament to thoughtful design and high-end finishes. Engineered wood flooring extends through the open concept living space, creating a seamless flow that’s perfect for entertaining.
The kitchen, a central feature of these homes, boasts stainless steel appliances, premium granite or quartz countertops, and an oversized island that serves as both a workspace and a gathering spot. The upper cabinetry is 42″, and there is plenty of storage in the pantry area.
Attention to detail is evident throughout with central air conditioning for year-round comfort, and a cozy gas fireplace. The lower level is fully finished, complete with a wet bar, providing an ideal space for hosting friends or enjoying family movie nights. The high efficiency furnace and tankless water heater ensure efficient energy use, and the builder’s warranty offers peace of mind for new homeowners. See all of the features here.
Adding to the appeal of Today’s Terrace is the lack of an HOA. This allows residents to enjoy more freedom and flexibility. All of these highlights, combined with the location’s natural beauty and proximity to city amenities, make these homes a coveted choice.
Is your new Colorado Springs home waiting for you at Today’s Terrace at Creekwalk?
Check out The Reserve at Park Vista – NOW SELLING!
If you are looking for Colorado Springs new construction homes in the heart of this popular area, The Reserve at Park Vista is now available.
Colorado Springs, Colorado is increasing in popularity because it offers beautiful surroundings, a plentitude of activities, business and educational opportunities, and a relaxing lifestyle for all.
At Mountain Property Builders, we are proud to announce that our quality, Colorado Springs new construction homes are now available for sale. These contemporary homes at the Retreat at Park Vista are in an HOA-free community in Colorado Springs School District 11.
Right now, you can:
Select your favorite color palette for paint, floors, counters, and cabinets – all with a very short build time.
Move around and breathe with extra space with a stucco two-story home with 9-foot ceilings on both the main and upper levels. 4 bedrooms, 4 bathrooms and a 2 car garage plus a fully finished basement.
Enjoy a gas range, granite counters in the kitchen and bathrooms, a gas fireplace in living room, front yard xeriscaping, and a backyard five-foot fence for privacy – all included standard.
Colorado Springs new construction homes are now available at The Reserve at Park Vista!
Why Choose Us for Colorado Springs New Construction Homes?
At Mountain Property Builders, Inc. we specialize in building homes designed to fit your lifestyle. Your new home has to be beautiful, unique and functional.
We are one of the few semi-custom homebuilders along the Front Range to offer upgraded features and finishes as our standard. In addition, a wide variety of options are available that allow you to enhance your home. You will love our modern floor plans designed for easy comfortable living.
Because we’re also dedicated to providing unparalleled craftsmanship, building with Mountain Property Builders, Inc. means you’ll be moving into a home of lasting quality. See for yourself the new homes we’re building right now in Colorado Springs, Colorado. We know you’ll feel right at home.
Popular Colorado Springs location and high-quality amenities now available at MountainPropertyBuilders.com.
Colorado Springs, CO, July 9, 2024 – New construction homes for sale in Colorado are now available in the popular Colorado Springs area via the established, boutique building company, Mountain Property Builders, Inc., https://www.mountainpropertybuilders.com.
“Our family-owned business with decades of experience and an excellent reputation in this industry is very proud of the new construction homes we have for sale,” states Jeff Carter, Mountain Property Builders, Inc. Co-founder. “Now, buyers can enjoy owning a quality home that is comfortable and in a friendly community close to work, school and all of the things they love to do in the Colorado Springs area.”
Jeff Carter of Mountain Property Builders, Inc.
Mountain Property Builders, Inc. has new Colorado Springs homes for sale with numerous benefits for buyers:
Terrace at Creekwalk is under construction in Southwest Colorado Springs’ new Creekwalk neighborhood near the internationally acclaimed destination, The Broadmoor. It’s available for $790,000 and buyers can:
Receive low, fixed rate financing with builder’s preferred lender;
Choose their preferred second floor layout: 3 bedrooms, double owner’s suites, or 2 bedrooms plus a loft with contemporary exterior elevation;
Enjoy an open main level layout with engineered wood flooring throughout, 9-foot ceilings on both the main and upper levels, 3-4 bedrooms, 4 bathrooms and a finished 2-car attached garage;
Prepare meals in the kitchen with stainless steel appliances, granite or quartz counters, an oversized island, 42″ upper cabinetry, and pantry;
Feel comfortable with central A/C, a high-efficiency furnace, tankless water heater, and the Great room’s gas fireplace;
Entertain in the basement wet bar; and
Relax with a Builder Warranty and more!
At The Reserve at Park Vista, a quiet community in the heart of Colorado Springs, Colorado, buyers can:
Select their favorite color palette for paint, floors, counters, and cabinets for a limited time;
Spread out in a stucco two-story home with 9-foot ceilings on both the main and upper levels. 4 bedrooms, 4 bathrooms, a 2-car garage, and a full finished basement; and
Enjoy a gas range, granite counters in the kitchen and bathrooms, a gas fireplace in living room, front yard xeriscaping, a backyard five-foot privacy fence included standard, and other benefits.
“Our award-winning team members look forward to answering questions and making the home-buying process as easy and cost-effective as possible for buyers,” states Carter. “There are only so many of these high-quality new construction homes available in this popular community, and they will go fast.”
After spending thirty years in engineering, HVAC and construction, Jeff Carter founded Mountain Property Builders, Inc. in 2007 to help people make the dream of owning a well-made home in the Colorado Springs area a reality while receiving the best value possible. Buyers enjoy VIP customer service, low fixed-rate financing, high-quality materials, amenities and workmanship, a family-friendly community near good schools, work and attractions, and a smart, functional and comfortable house they will be proud to call home. For more information, visit https://www.mountainpropertybuilders.com.
# # #
Media Contact: Melanie Rembrandt, Rembrandt Communications, 800-771-0116
The Reserve at Park Vista is an HOA-free new construction community in a popular central location! This open concept stucco two-story features nine foot ceiling heights on both the main and upper levels. Enjoy 4 bedrooms, 4 bathrooms and a 2 car garage plus a fully finished basement and fenced private yard.
Kitchen features pantry and extended height 42 inch upper cabinetry. Stainless steel appliance package includes a gas range. Kitchen sink is stylish single bowl undermount. Living room offers gas fireplace with tile surround and generous can light placement. Dining space walks out to the back yard with privacy fence. Luxury vinyl tile flooring in entry, kitchen, dining, living room, bathrooms, and laundry.
Owner’s suite offers both a walk-in closet plus a second closet, and an attached bathroom with double sinks and a tiled tub & shower. You’ll find undermount sinks and tile shower surrounds in the full bathrooms. Laundry is upstairs with the bedrooms. Fully finished basement is a great secondary living space. There’s a bedroom with walk-in closet, full bathroom, and spacious rec room! The property features 2×6 construction, 95% efficient furnace, central A/C, and included front yard xeriscaping. Pike’s Peak views from the upper level, too!
Convenient to Academy, Powers, Austin Bluffs, and UCCS with a wide array of shopping, dining and other nearby amenities. Situated on private cul-de-sac, nicely tucked away from the hustle and bustle. If you appreciate a quiet living environment, this will suit you perfectly.
Overview:
4166 Orchid Street
Park Vista
Style: Stucco 2 Story with Finished Basement
Bedrooms: 4 / Bathrooms: 4 Square Feet: 2,599 Status: SOLD
MLS# 4148219
Highlights Include:
Open concept stucco two-story paired homes
9 ft ceilings on main and upper levels
4 bedrooms
4 bathrooms
2 car garage
2,599 sq ft, including finished basement
Living room features a gas fireplace with tile surround
2×6 construction
High efficiency furnace
Central A/C
On a private cul-de-sac with Pikes Peak views from the upper level!
Stainless steel appliance package includes a gas range
Kitchen features pantry and Timberlake cabinets with extended height 42 inch upper cabinetry
Luxury vinyl flooring throughout the main level
Owner’s suite offers both a walk-in closet plus a second closet, and an attached bathroom with double sinks and a walk-in shower
Undermount sinks, and tile shower surrounds in the full bathrooms
Upstairs laundry
Xeriscape front yard and private, fully fenced back yard
Builder Warranty is included
No HOA!
Convenient to Academy, Powers, Austin Bluffs, and UCCS with a wide array of shopping, dining and other nearby amenities