4358 Siferd Boulevard
4358 Siferd Boulevard
Stucco 2 Story Townhome with Finished Basement
$494,950
Community:
Park Vista
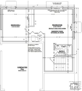
The Reserve at Park Vista offers custom new construction on a private cul-de-sac in a highly convenient location! To-be-built 2-story townhomes feature stucco exterior, 9 ft ceilings on the main and upper levels, attached 2-car garage with automatic garage door opener, and low-maintenance xeriscaped front yard. Enjoy 4 bedrooms, 4 bathrooms, fully finished basement with rec room, and private backyard. You have the unique ability to select your favorite finishes and upgrades, ensuring every detail is tailored specifically to your taste!
Overview:
4358 Siferd Boulevard
The Reserve at Park Vista
Style: Stucco 2 Story Townhome with Finished Basement
Bedrooms: 4 / Bathrooms: 4
Square Feet: 2,453
Status: TO BE BUILT
MLS# 9597260
Highlights Include:
- Stainless steel appliance package includes gas range and refrigerator
- Kitchen features stone counters, bar-top island, abundant can lighting, pantry. and 42″ extended height upper cabinetry
- Luxury vinyl flooring throughout the main level
- Owner’s suite offers a walk-in closet an en suite bathroom with a double vanity and custom tiled tub & shower
- Stone counters, undermount sinks, and tile surrounds in the full bathrooms
- Upstairs laundry with washer and dryer included
- Central A/C and window blinds included
- Xeriscape front yard and private, fully fenced backyard with auto sprinklers
- Convenient to Academy, Powers, Austin Bluffs, UCCS, and Palmer Park, with a wide array of shopping, dining, and other nearby amenities





















































































































































































































































































